福岡市博多区のテナント(倉庫・事務所・オフィス・店舗・駐車場)をお探しなら、センチュリー21 みずほ不動産 にお任せください!
トップページ
>>
こだわり物件検索
>>
日下部東那珂倉庫
日下部東那珂倉庫
[
地図を拡大する
]
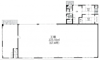
前面駐車場7〜8台付き一棟タイプ倉庫工場!
事務所13.20坪
工場倉庫67.40坪
住居2DK付き(48.60平米)
延べ95.39坪
最終更新日
2012年07月23日
物件種別
工場(事務所付), 倉庫(事務所付)
住所
福岡市博多区東那珂1-4-11
交通
JR竹下駅 徒歩約16分
築年月
昭和60年10月
建物構造
鉄骨造1階建
駐車場
あり(--台)
階数
賃料
管理費
共益費
敷金
その他
専有面積
備考
パノ
ラマ
引渡し
契約期間
契約条件
--
--
--
--
--
315.35m
2
95.39坪
現在このタイプは満室です
相談
3年
別途消費税